1. Accueil
  2. Achat
  3. Achat Appartement
  4. Achat Appartement Var (83)
  5. Achat Appartement FREJUS (83600)

Appartement T2 à vendre 2 pièces - 49,76 m2 FREJUS - 83

Ref : 4186

243 000 €

  • Honoraires charge vendeur
Appartement T2 à vendre - 2 pièces - 49,76 m2 - Frejus - 83 - PROVENCE-ALPES-COTE-D-AZUR
Appartement T2 à vendre - 2 pièces - 49,76 m2 - Frejus - 83 - PROVENCE-ALPES-COTE-D-AZUR
Appartement T2 à vendre - 2 pièces - 49,76 m2 - Frejus - 83 - PROVENCE-ALPES-COTE-D-AZUR
Appartement T2 à vendre - 2 pièces - 49,76 m2 - Frejus - 83 - PROVENCE-ALPES-COTE-D-AZUR
Appartement T2 à vendre - 2 pièces - 49,76 m2 - Frejus - 83 - PROVENCE-ALPES-COTE-D-AZUR
Appartement T2 à vendre - 2 pièces - 49,76 m2 - Frejus - 83 - PROVENCE-ALPES-COTE-D-AZUR
Appartement T2 à vendre - 2 pièces - 49,76 m2 - Frejus - 83 - PROVENCE-ALPES-COTE-D-AZUR
Appartement T2 à vendre - 2 pièces - 49,76 m2 - Frejus - 83 - PROVENCE-ALPES-COTE-D-AZUR
Envoyer un message
Message
Envoyer ce bien à un ami

Description

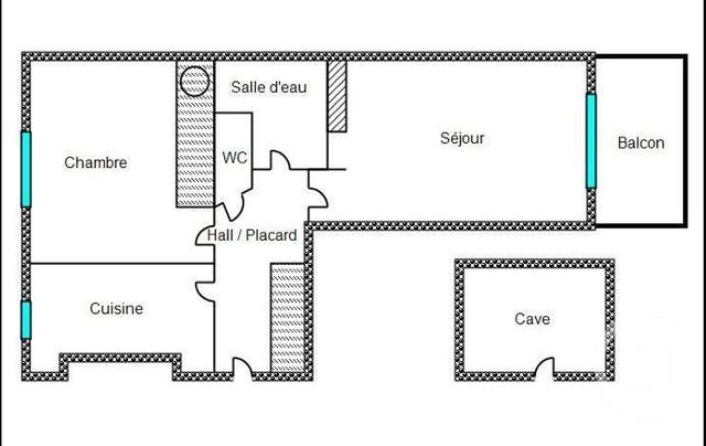
VENTE - FREJUS PLAGE - Au calme, à proximité immédiate des commerces et des plages, dans une résidence bien tenue, nous vous présentons un appartement traversant 2 pièces d'une surface de 46,76m² au 2ème étage avec ascenseur.

Il se compose d'une entrée avec placard, d'un séjour de plus de 16m² prolongé d'un balcon d'environ 6m² orienté SUD, d'une cuisine indépendante, d'une chambre avec placard, d'une salle d'eau et de WC séparés.

Une cave en sous-sol vient compléter ce bien. Idéal pour un investissement ou pour une résidence secondaire.

Faibles charges et possibilité d'abonnement parking pour 30 euros par mois.

Localisation

Laissez-nous vos coordonnées pour obtenir la localisation

Envoyer

Afficher sur la carte :

Demander la localisation

Vue globale

  • Surface totale : 49,8 m2
  • Surface habitable : 49,8 m2
  • Type d'appartement : T2
  • Étage : 2ème
  • Nombre de pièces : 2
    • Entrée (6,3 m2)
    • Cuisine (7,8 m2)
    • Séjour (16,3 m2)
    • Salle d'eau (3,6 m2)
    • WC (1 m2)
    • Chambre (14,8 m2)
  • Type de construction : Traditionnelle
  • Année construction : 1966

Équipements

Général

  • Surface cave : 3 m2
  • WC séparés
  • Chauffage : Individuel radiateur electricité
  • Eau chaude : Ballon électrique
  • Toiture : Tuile
  • Ascenseur
  • Balcon
  • Interphone
  • Air conditionné
  • Cable

À savoir

  • Travaux récents : Courroie ascenseur / vérification et réfection toiture
  • Charges / mois : 67,8 €
  • Taxe foncière : 1004 €

Pour consulter les barèmes d'honoraires de l'agence, cliquez ici

Les informations sur les risques auxquels ce bien est exposé sont disponibles sur le site Géorisques :

Copropriété

  • Nombre de Lots : 12
  • Charges courantes par an : 814,0 €
  • Pas de procédure en cours

Les performances énergétiques

logement extrêmement performantlogement extrêmement peu performantconsommationémissions(énergie primaire)1755kWh/m2.ankg CO2/m2.an76 kWh/m²/an d'énergie finalePassoire énergétique
* Dont émissions de gaz à effet de serre peu d'émissions de CO2 Émissions de CO2 très importantes kgCO 2 /m 2 .an 5

Date du DPE : 05/08/2025

Bien proposé par Merwan métayer EI, agent commercial (RSAC 980624886)

Ce bien est proposé par l'agence CENTURY 21 Sud Habitat

CENTURY 21 Sud Habitat

CENTURY 21 Sud Habitat

791 boulevard d'Alger, L'Acapulco 1

83600 FREJUS

04 94 83 23 77
qualitelis Votre agence est notée
Achat Vente
9,5/10

Nos offres

Notre agence immobilière à Frejus vous propose :

Calculer vos mensualités
de remboursement

Montant du prêt :
Durée du crédit
Taux d'intérêt (hors assurances)

vos mensualités

- € par mois

(Dont -€ d’assurances)

Crédit immobilier simulation
et premiers calculs

vous êtes acquéreur et vendeur,

Vous êtes acquéreur et vendeur, nos agents immobiliers peuvent vous accompagner dans vos projets

Contacter l'agence

Envoyer à un ami

Envoyer

Créer votre alerte

Rappel de vos critères de recherche :

Erreur dans les critères envoyés

Limite d'alertes atteinte

Cette alerte existe déjà

Cette alerte est déjà enregistrée pour cette adresse email. Vous continuerez à recevoir les biens correspondant à vos critères.

Une erreur est survenue

Merci de réessayer ultérieurement.

Votre alerte a été créée

Vous recevrez les biens correspondant à vos critères.

logo vente privées

48h

d’avance sur
le marché

Prenez un temps d’avance sur le marché en profitant gratuitement des Ventes Privées CENTURY 21

Si ce n’est déjà fait, allez compléter le profil de votre compte afin de pouvoir recevoir en avant-première des biens exclusifs, réservés à nos clients pendant les 48 premières heures suivant leur commercialisation.

Nos agences proposent régulièrement des biens comme celui que vous cherchez

Ne ratez pas une opportunité, on vous alerte en priorité !

Êtes-vous actuellement propriétaire de votre bien ?
Créer une alerte
Je souhaite être alerté
Voir les biens correspondants

Envoyer un message :

Envoyer